¿PENSANDO EN HACERTE UNA CASA?, INTERESANTE PARCELA EN LA RESERVA DE SOTOGRANDE_PROXIMA AL COLEGIO INTERNACIONAL

  • 580.000€
Venta
¿PENSANDO EN HACERTE UNA CASA?, INTERESANTE PARCELA EN LA RESERVA DE SOTOGRANDE_PROXIMA AL COLEGIO INTERNACIONAL
  • 580.000€

Parcela de 2662 m2 en venta en una zona tranquila de la conocida La Reserva de Sotogrande. Por su ubicación, a tan solo 10 minutos a pie del Colegio Internacional de Sotogrande y cerca de un famoso campo de golf, sería una excelente inversión.

La parcela La Reserva Sotogrande está orientada al sureste, con vista al bosque maduro, lo que hace imaginar una casa en el bosque donde disfrutar de paz y tranquilidad al tiempo que se encuentra a poca distancia de servicios.
Se encuentra a menos de 10 minutos en coche de las numerosas tiendas, bares y restaurantes de Pueblonuevo de Guardiaro, Torreguadiaro, el puerto de Sotogrande y las playas locales.

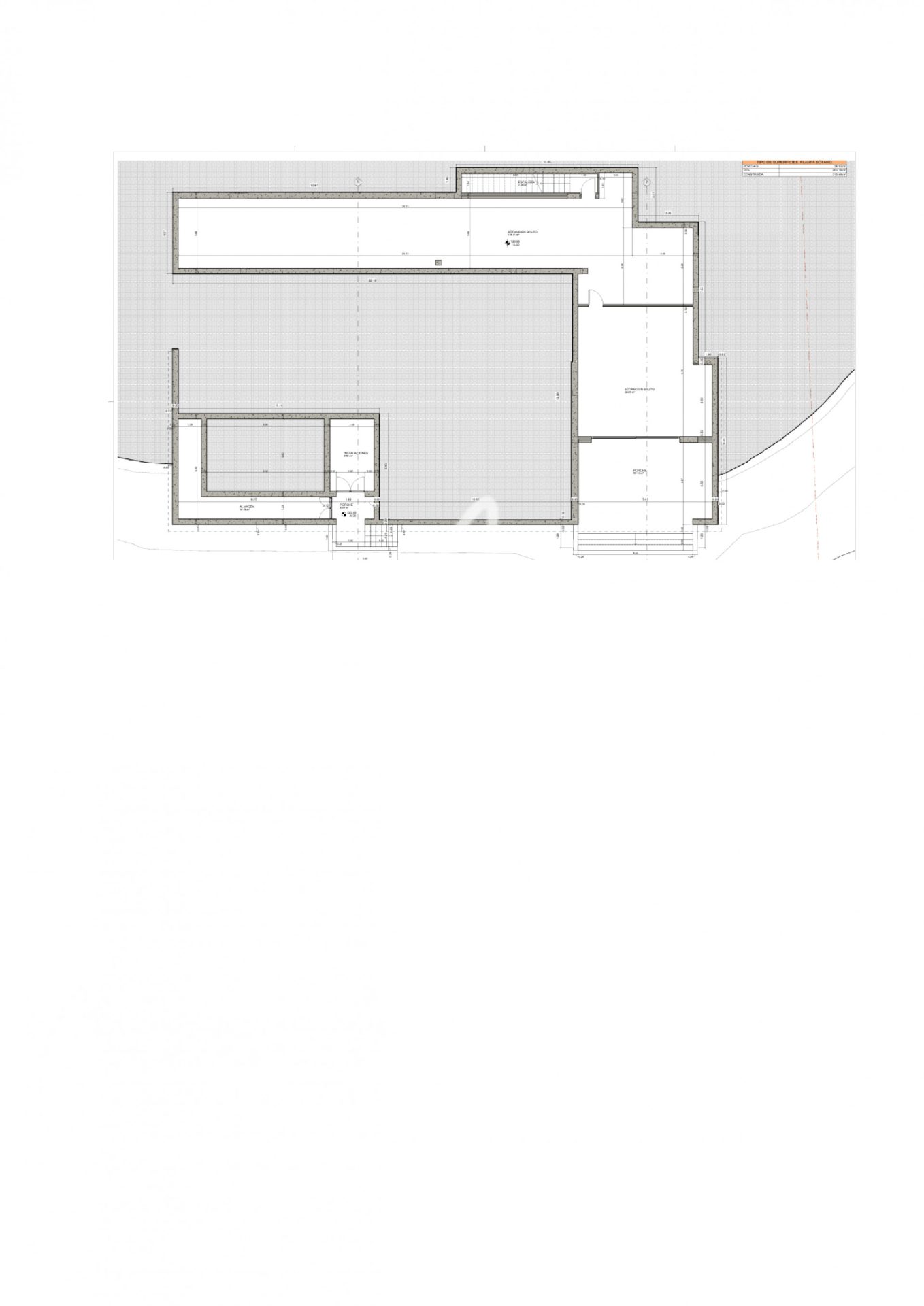
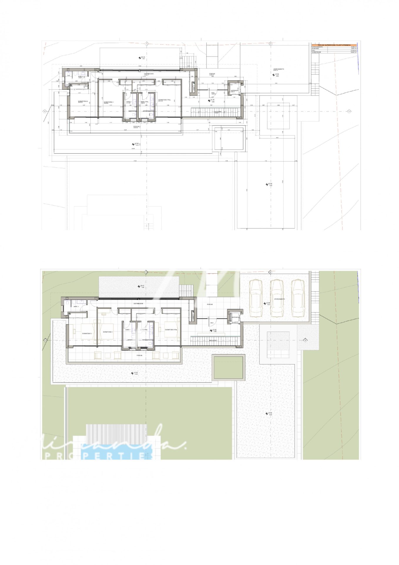
Esta parcela también tiene la opción de incluir un proyecto ya hecho. Sería un proyecto para una villa contemporánea de 600 m2 con clasificación energética Clase A, configurada como una gran casa de 4 dormitorios, con un apartamento contiguo de 2 dormitorios y un gran sótano para oficina/gimnasio/sala de cine.

El proyecto, elegantemente diseñado, incluye toda la documentación, los estudios, el permiso de planificación completo, todas las licencias otorgadas y todos los impuestos pagados. Esto significa que no habrá demoras en la colocación de las primeras piedras y el inicio de la construcción.

¡Concierte una cita con nosotras para obtener más información o si desea visitar la parcela y el área!

Dirección

  • Ciudad Sotogrande
  • Zona La Reserva

Detalles

Actualizado en abril 9, 2026 a 9:30 am
  • ID de propiedad: 442-00291P
  • Precio: 580.000€
  • Terreno: 2622
  • Dormitorio: 0
  • Baño: 0
  • Garaje: 0
  • Estado: Venta

Información adicional

  • Comunidad: 154€
  • IBI: 1095€
  • Orientación: SE

Información de contacto

Ver listado

Consultar acerca de esta propiedad

Comparar listados

Comparar
Miranda.Properties
  • Miranda.Properties